联系我们contact
全国咨询热线136-0523-2715

江苏振泰电缆有限公司

联系人:杨总

手 机:13605232715

电 话:0517-86841173

地 址:江苏省金湖县金南工业园区

资质荣誉
当前位置:首页>>资质荣誉

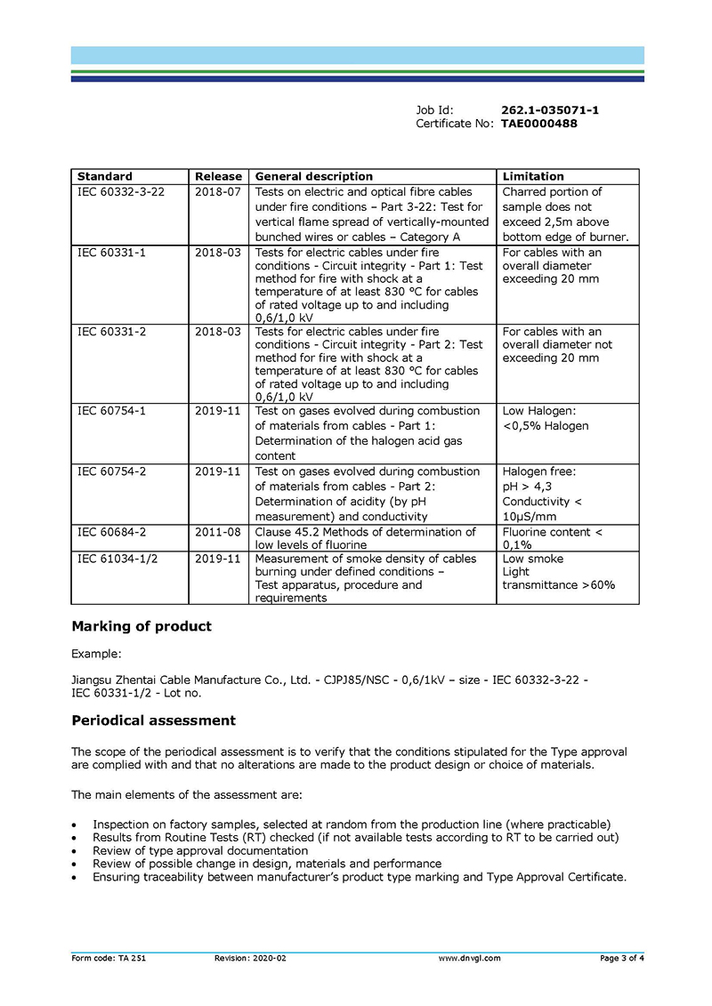
GL1证书

作者:江苏振泰电缆有限公司 点击:134  发布日期:2025年08月28日

GL1_页面_2-1.jpg

GL1_页面_3-1.jpg

GL1_页面_4-1.jpg

上一篇:GL2证书
下一篇:质量管理体系认证证书
  • Copyright 2023 江苏振泰电缆有限公司 版权所有
  • 备案号:苏ICP备18001921号
  • 技术支持:思科网络